Тюмень, Братьев Бондаревых, 5
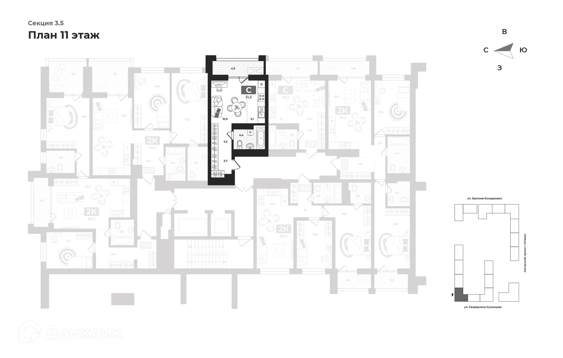
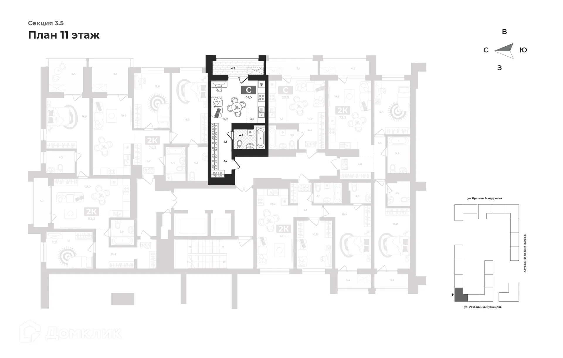
Площадь
Жилая
Кухня
Отделка
Класс жилья
Комнат
Номер кв.
Этаж
В продаже 1-комнатная квартира в современном жилом комплексе "ЖК "Маэстро"" 🏢. Квартира расположена на 13-м этаже 24-этажного дома. Отличный вариант для семьи.
Чтобы узнать подробности и зафиксировать цену — свяжитесь с нами прямо сейчас! 📞
Квартал Уникальных «МАЭСТРО» — это место, где искусство, жизнь и стремление к совершенству обретают единство. Территория находится в 10 минутах от центра города и удалена от шума дорог, сохраняя приватность и комфорт жителей. Развивающийся креативный кластер, магазины и гастропабы на первых этажах, двор с продуманной дизайн-концепцией. Просторные квартиры с террасами и солнечные хайфлэты. Эстетика и вдохновение на смелые шаги в каждом квадратном метре. Каскадная архитектура подчеркивает природную красоту локации и задает тон комфорта всего комплекса. Переменная этажность домов наполняет солнечным светом и чувством свободы. В проекте также предусмотрено: Безбарьерная среда Закрытый двор без машин Гармоничный ландшафтный дизайн Зонирование двора для отдыха, спорта и игр Видеонаблюдение 24/7 2 паркинга: подземный и по периметру комплекса Кладовые помещения Прозрачные входные группы Тихие лифты с уровня парковки Колясочные Гостевые санузлы на первом этаже
Срок сдачи: 4 кв. 2025 г.
Срок сдачи: 4 кв. 2025 г.
Площади квартир
Этажность
Класс жилья
Корпусов
Стены