Тюмень, Новосёлов, 105
Площадь
Жилая
Кухня
Отделка
Класс жилья
Комнат
Номер кв.
Этаж
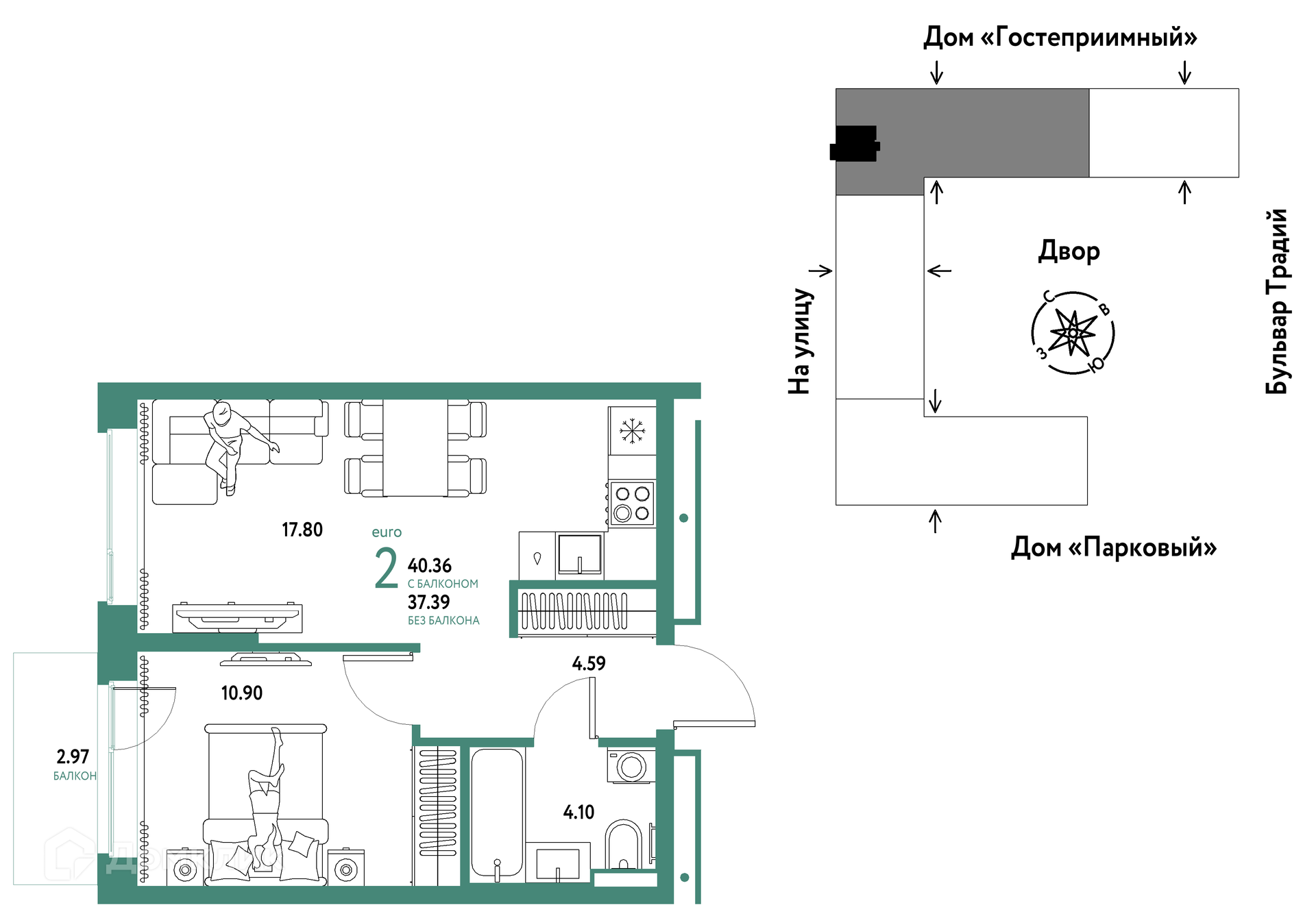
Продается 2-комнатная квартира в современном жилом комплексе "ЖК «Домашний»" 🏢. Квартира расположена на 4-м этаже 16-этажного дома. Отличный вариант для комфортной жизни.
Для бесплатного бронирования и зафиксировать цену — позвоните нам прямо сейчас! 📞
Микрорайон "Домашний" — новый масштабный проект от застройщика "Страна Девелопмент" в районе Московского тракта. Это первый цифровой микрорайон в Тюмени. Место, где вы чувствуете себя в безопасности, благодаря многоуровневой системе доступа и видеонаблюдения. Дом, который встречает вас у самого входа, благодаря системе распознавания лиц. Дома с «умными квартирами», которые заботятся о вас и освобождают время, чтобы провести его с семьей. «Домашний» спроектирован по принципу «город в городе». Жители найдут всё необходимое для повседневной жизни и отдыха прямо внутри микрорайона. Пешеходный «Бульвар Традиций» станет центром притяжения жильцов и гостей микрорайона, ведь здесь будет создано инклюзивное пространство для всех поколений. В перспективе в микрорайоне появятся детский сад на 560 мест и новая современная школа. Домашний. Добро пожаловать домой!
Срок сдачи: 1 кв. 2023 г.
Срок сдачи: 1 кв. 2023 г.
Площади квартир
Этажность
Класс жилья
Корпусов
Стены