Тюмень, Ярославская, 9 к1
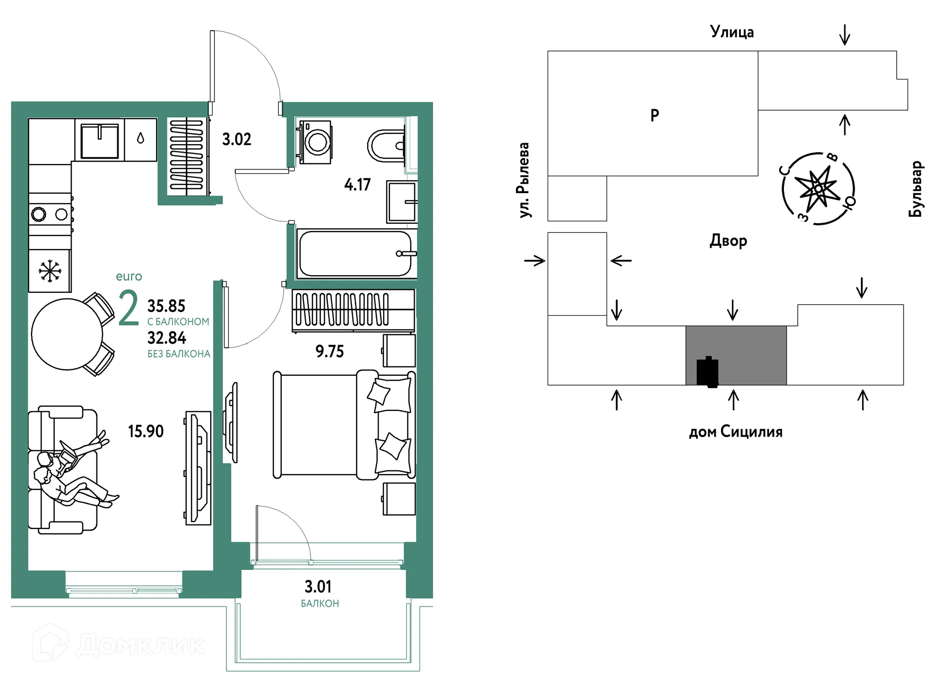
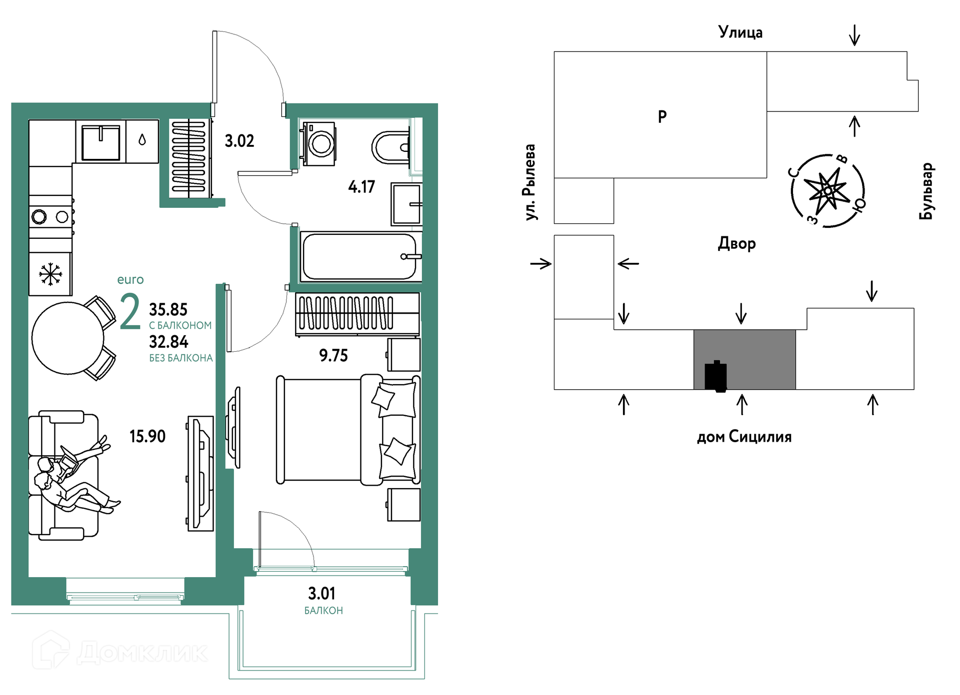
Площадь
Жилая
Кухня
Отделка
Класс жилья
Комнат
Номер кв.
Этаж
Продается 2-комнатная квартира в востребованном жилом комплексе "ЖК Остров-сад" 🏢. Квартира расположена на 12-м этаже 25-этажного дома. Прекрасный выбор для комфортной жизни.
Чтобы узнать подробности и проверить актуальную стоимость — позвоните нам прямо сейчас! 📞
«Остров-сад» — камерный жилой квартал, с трёх сторон окружённый водами Туры. Район застройки обособлен от шумного центра, благодаря чему на территории комплекса сохраняется особая атмосфера приватной загородной жизни. В комплексе будут жилые дома со своей уникальной архитектурой, детский сад и школа, а главная достопримечательность проекта — собственный пешеходный бульвар вдоль береговой линии. Это идеальное место для утренних пробежек, прогулок с детьми или романтических свиданий. Дома с разной этажностью от 14 до 24 этажей Безопасный двор с круглосуточной охраной Многоуровневый паркинг Дворы с тематическими парками и садами Уютные лобби для ожидания Широкий выбор планировок Квартиры с террасами
Срок сдачи: 2 кв. 2027 г.
Срок сдачи: 2 кв. 2027 г.
Площади квартир
Этажность
Класс жилья
Корпусов
Стены