Тюмень, Авторский жилой квартал "Опера"
Площадь
Жилая
Кухня
Отделка
Класс жилья
Комнат
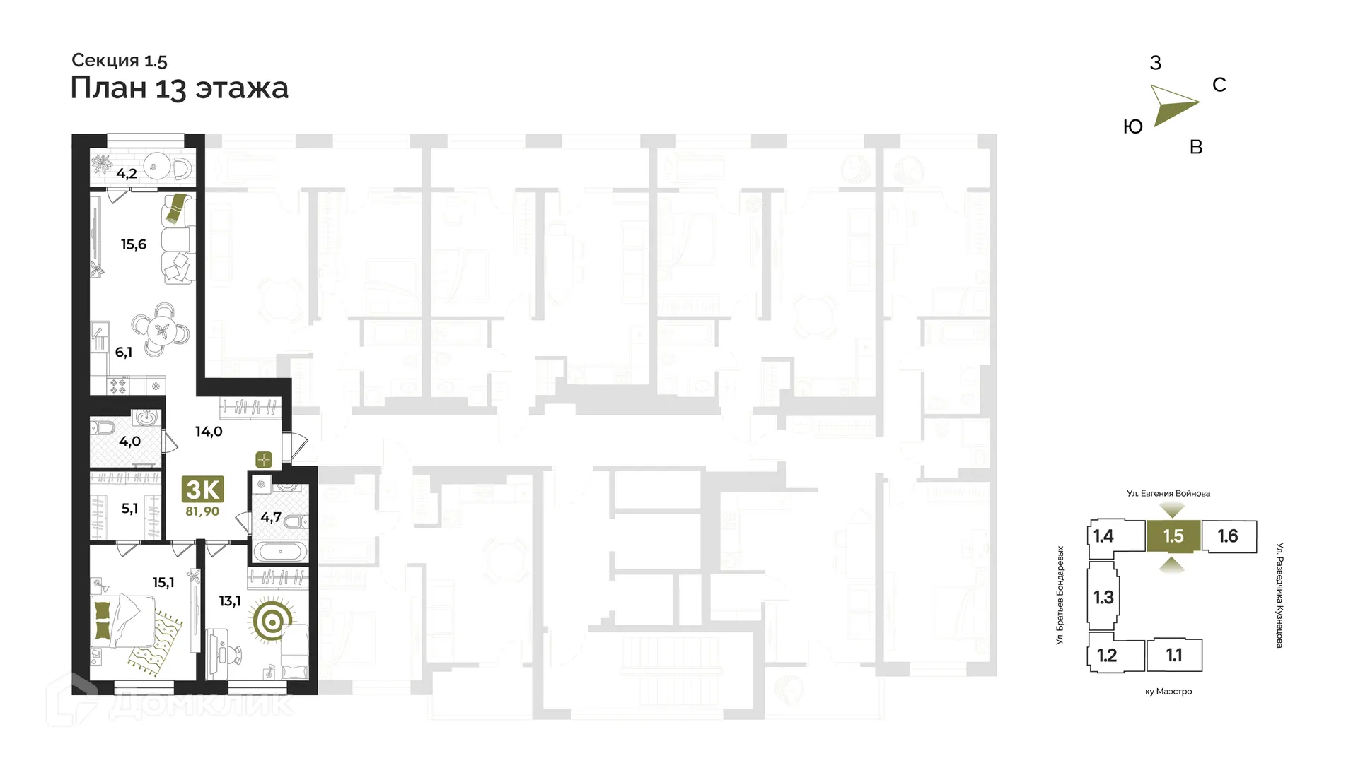
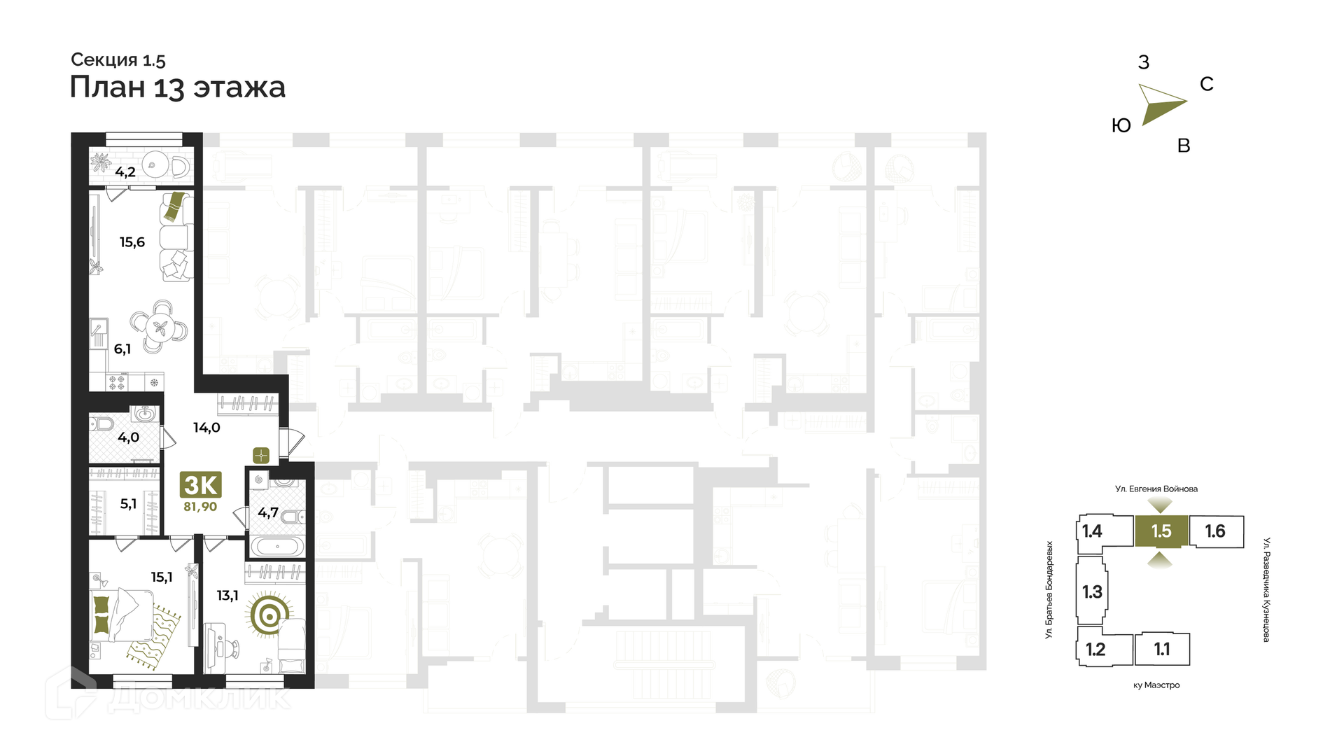
Номер кв.
Этаж
Продается 3-комнатная квартира в современном жилом комплексе "ЖК Авторский проект "Опера"" 🏢. Квартира расположена на 13-м этаже 17-этажного дома. Прекрасный выбор для комфортной жизни.
Для бесплатного бронирования и зафиксировать цену — свяжитесь с нами прямо сейчас! 📞
Авторский проект «Опера» - это атмосфера Петербурга в Тюмени. Проект комфорт-класса расположен на берегу озера в 10 минутах от центра города! Опера располагается в окружении живописных зеленых парков: Гагаринский лесопарк, парк Дружбы между Россией и Кореей, Ватутинская роща, возле озера Алебашево. Предусмотрены и почтовые зоны, колясочные с возможностью размещения велосипедов и электросамокатов. На первых этажах размещены лапомойки для домашних любимцев - максимум комфорта в каждом квадратном метре. Парадные Оперы - это просторные помещения с потолками высотой 4 метра. В нашем прочтении холл становится связующим звеном между городской жизнью и уютным домом. Также в проекте: Безбарьерная среда Закрытый двор без машин Гармоничный ландшафтный дизайн Зонирование двора для отдыха, спорта и игр Видеонаблюдение 24/7 2 паркинга: подземный на 520 машиномест и по периметру комплекса Кладовые помещения Прозрачные входные группы Тихие лифты с уровня парковки Колясочные Гостевые санузлы на первом этаже
Срок сдачи: 4 кв. 2024 г.
Срок сдачи: 4 кв. 2024 г.
Площади квартир
Этажность
Класс жилья
Корпусов
Стены